BREJACH Duplex

Duplex homes build on smart design
Cost-effective development solution for great living without big space
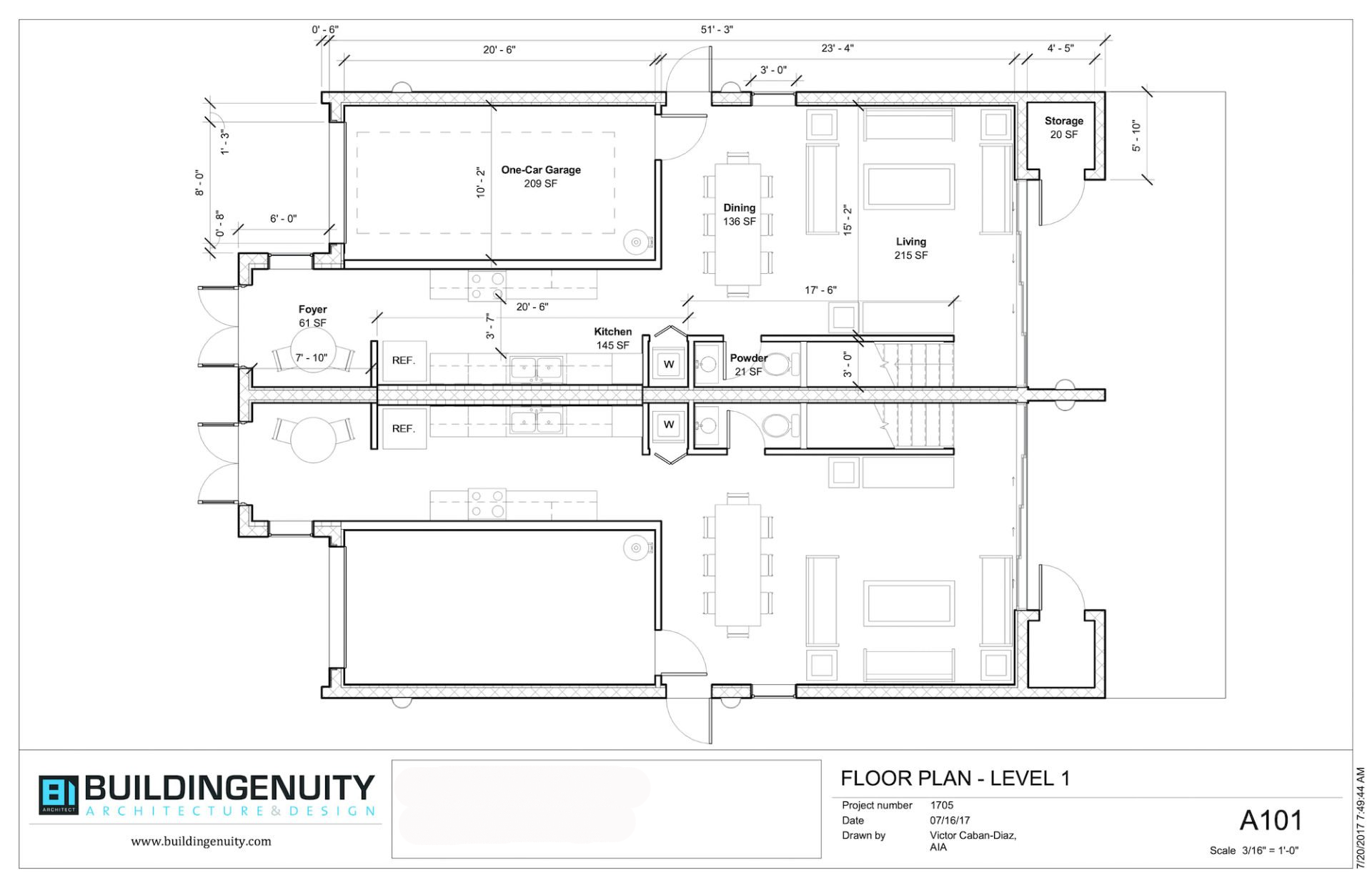
The goal of this project was to provide an attractive and cost-efficient project that would maximize ease and liveability in 1500 square feet. The result will transform a small, vacant lot into two family homes.
Key Services provided: Visualization, Architectural Design, Permitting, Construction Administration
I found working with Victor was a great and productive experience. We conceived a small, for-sale, townhouse project in the City of Fort Lauderdale. We worked as a three-person team, including Victor, an experienced local general contractor, and myself as developer.
My goal was to achieve an aesthetically pleasing product which would be attractive to infill buyers, but one which was also financially viable. Victor developed strong designs, and in concert with the contractor, were not unduly costly.
Traversing the city building department approval process was successful because of his experience. The team worked productively and the interaction was consistent and successful. Victor balanced the competing dynamics."
J. Griffin, Client


























